0
Exclusif
Nouveauté

EXCLUSIVITÉ - MAISON SAINT-JACUT-DE-LA-MER

Saint-Jacut-de-la-Mer (22750)
Réf : 14167

EXCLUSIVITÉ ARMOR CONSEIL IMMOBILIER - Geoffrey PERRÉE vous propose, à seulement 200 mètres de la plage, au cœur de l’extra-centre de la presqu’île, une opportunité unique d’acquérir une maison neuve dans un environnement aussi recherché que préservé.

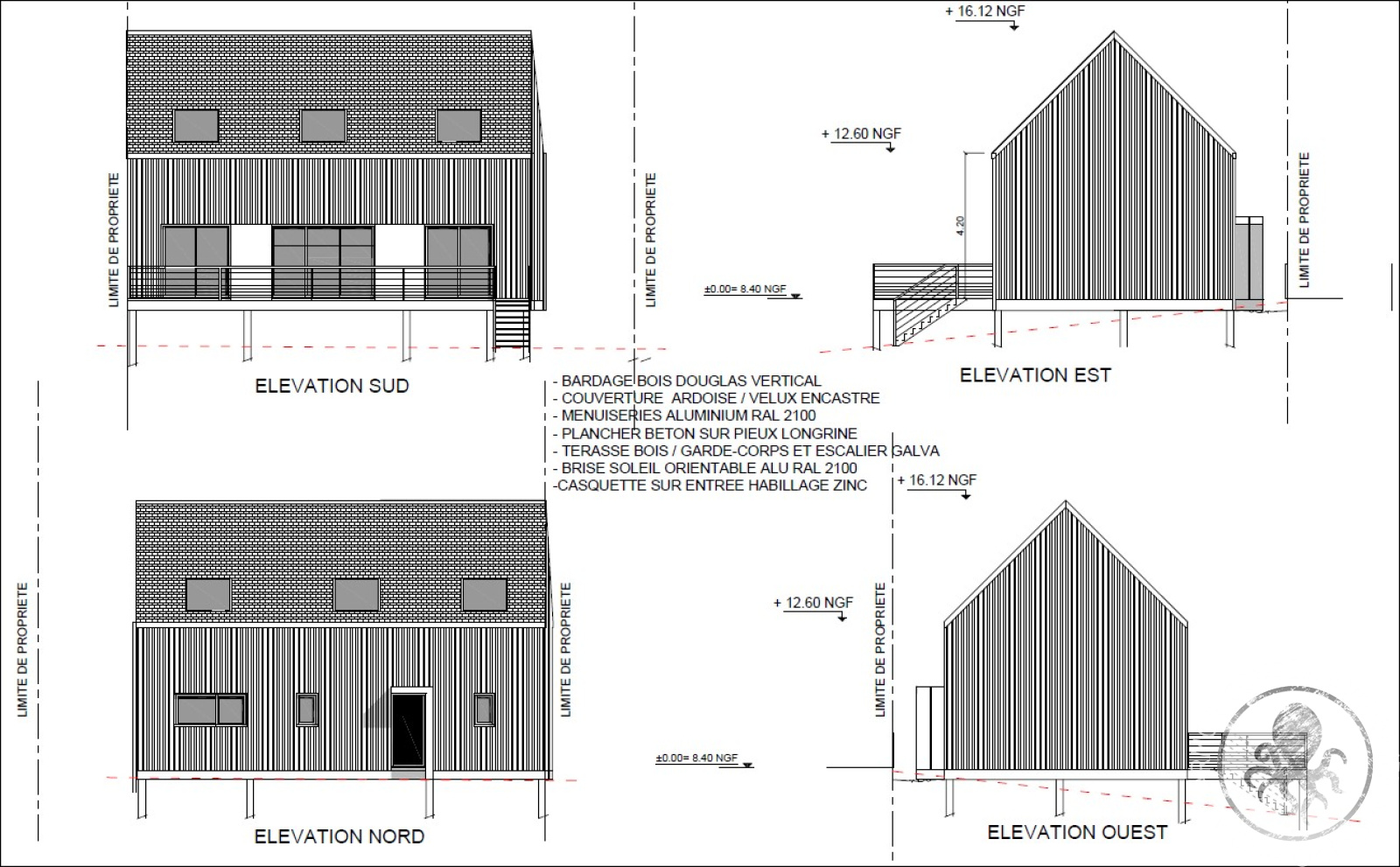
Cette future réalisation, dont le démarrage des travaux est imminent, vous offre la possibilité rare de devenir propriétaire d’un bien aux dernières normes de construction (RE2020), alliant confort moderne, performance énergétique et qualité de vie incomparable.

Pensée pour répondre aux exigences actuelles, cette maison proposera des prestations de qualité, une conception optimisée et des espaces de vie lumineux, le tout dans un cadre privilégié à proximité immédiate de la mer.

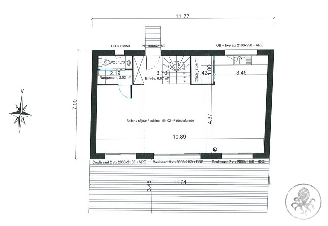
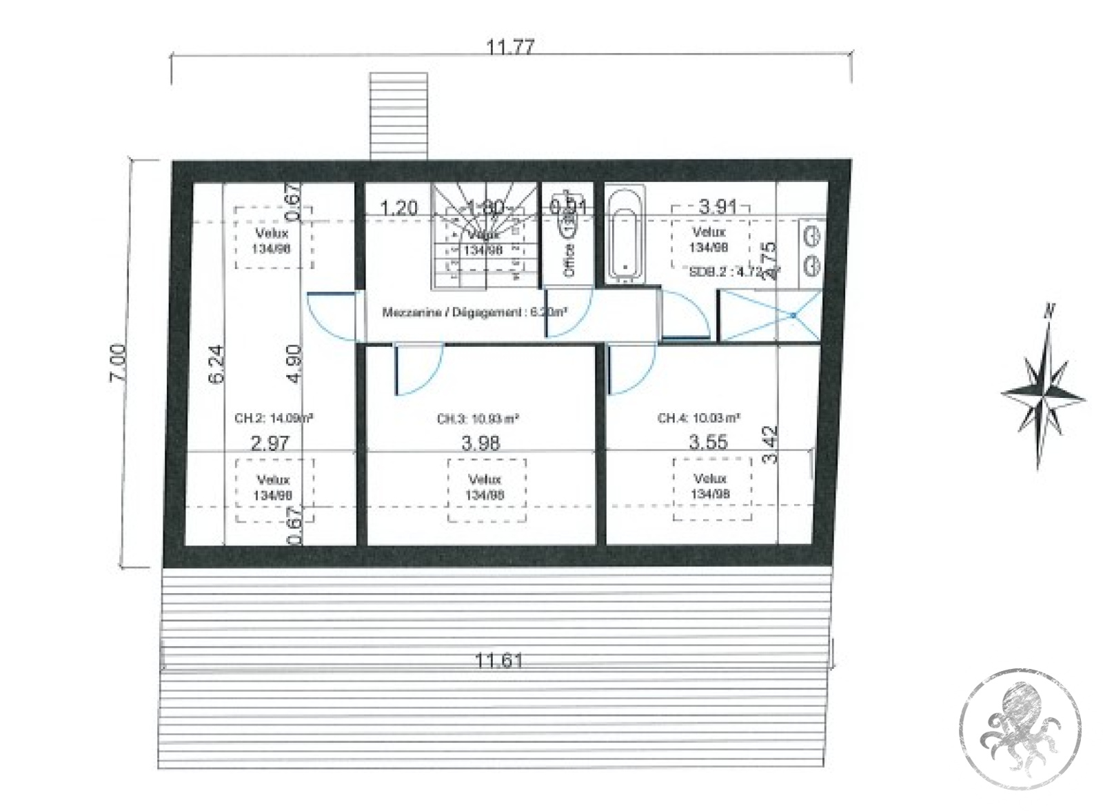
Cette maison en ossature bois et laine de bois est composée au rez-de-chaussée d'une belle pièce de vie lumineuse avec grande cuisine, d'une salle d'eau, un wc et une terrasse plein sud.
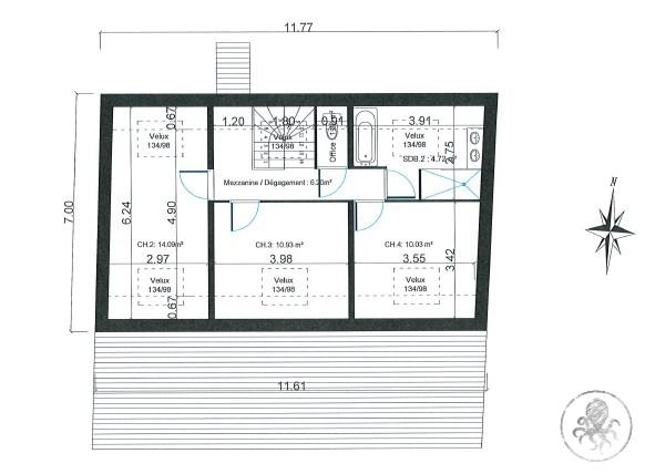
A l'étage un palier desservant 3 chambres, une salle de bains et un wc.
Le tout sur un terrain de 417m².
Prestations haut de gamme !
Fin des travaux en octobre 2026, à voir très rapidement !

Les informations sur les risques auxquels ce bien est exposé sont disponibles sur le site Géorisques : www.georisques.gouv.fr


Les informations sur les risques auxquels ce bien est exposé sont disponibles sur le site Géorisques
Prix du bien 556 500 €
Pièce(s) 4
Chambre(s) 3

Caractéristiques du bien

Caractéristiques Valeurs
Code postal 22750
Surface habitable (m²) 112,61 m²
surface terrain 417 m²
Nombre de chambre(s) 3
Nombre de pièces 4
Nombre de niveaux 2
Nb de salle de bains 2

Infos financières

Caractéristiques Valeurs
Prix de vente honoraires TTC inclus 556 500 €
Prix de vente honoraires TTC exclus 530 000 €
Honoraires TTC à la charge acquéreur 5 %

Bilans énergétiques

DPE GES
Ce bien vous intéresse ?
Fieldset par défaut
Fieldset par défaut
Validation

* champs obligatoires

Contacter l'agence
Validation
Les informations recueillies sur ce formulaire sont enregistrées dans un fichier informatisé par La Boite Immo agissant comme Sous-traitant du traitement pour la gestion de la clientèle/prospects de l'Agence / du Réseau qui reste Responsable du Traitement de vos Données personnelles. La base légale du traitement repose sur l'intérêt légitime de l'Agence / du Réseau. Elles sont conservées jusqu'à demande de suppression et sont destinées à l'Agence / au Réseau. Conformément à la loi « informatique et libertés », vous disposez des droits d’accès, de rectification, d’effacement, d’opposition, de limitation et de portabilité de vos données. Vous pouvez retirer votre consentement à tout moment en contactant directement l’Agence / Le Réseau. Consultez le site https://cnil.fr/fr pour plus d’informations sur vos droits. Si vous estimez, après avoir contacté l'Agence / le Réseau, que vos droits « Informatique et Libertés » ne sont pas respectés, vous pouvez adresser une réclamation à la CNIL. Nous vous informons de l’existence de la liste d'opposition au démarchage téléphonique « Bloctel », sur laquelle vous pouvez vous inscrire ici : https://www.bloctel.gouv.fr Dans le cadre de la protection des Données personnelles, nous vous invitons à ne pas inscrire de Données sensibles dans le champ de saisie libre.
Ce site est protégé par reCAPTCHA, les Politiques de Confidentialité et les Conditions d'Utilisation de Google s'appliquent.

Localisationdu bien

  • Commerces et santé
  • Loisirs
  • Ecoles
  • Transports
  • Pratique