0

PROPRIÉTÉ D'EXCEPTION - CRÉHEN

Créhen (22130)
Réf : 14091

Uniquement à l'agence Armor Conseil Immobilier

Geoffrey perrée vous propose cette magnifique longère au calme absolu, à seulement 10 minutes des plages.

Nichée au bout d’une allée, à l’abri de tout regard et entourée de verdure, cette superbe propriété de caractère offre un cadre de vie exceptionnel : 4 hectares de terrain, environ 300m² de bâtis et un potentiel unique pour les amoureux d’espace, de nature et de tranquillité.
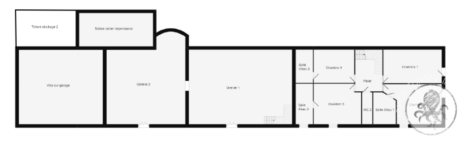
La longère se compose de trois maisons qui communiquent entre elles :
La maison principale dispose aujourd’hui de 145m² entièrement rénovés (DPE C).
Au rez-de-chaussée, vous découvrirez une vaste pièce de vie lumineuse, sublimée par un poêle à bois central, idéale pour recevoir et profiter de moments chaleureux en famille.
À l’étage, quatre chambre ont été aménagées, chacune disposant de sa propre salle d’eau : un confort rare pour une maison de campagne.
À cela, s’ajoutent une seconde maison à rafraîchir, parfaite pour créer un second logement, un atelier, un gîte ou un espace professionnel.
Une troisième maison à rénover vient compléter cette longère.
Les parties annexes complètent ce bien : dépendances, garage.
La toiture a été refaite sur la totalité du bâti, des drains ont été posés, et des prestations de qualité mariant charme de la pierre et confort moderne ont été réalisées.
À l’extérieur, l’environnement se compose de 4 hectares de prairies et de bois. Aucun vis-à-vis, une intimité totale Un cadre naturel préservé et harmonieux.
Les plages de Saint-Jacut-de-la-Mer et toutes les commodités se trouvent à seulement 10 minutes en voiture, offrant un parfait équilibre entre calme rural et dynamisme littoral.

Les informations sur les risques auxquels ce bien est exposé sont disponibles sur le site Géorisques : www.georisques.gouv.fr


Les informations sur les risques auxquels ce bien est exposé sont disponibles sur le site Géorisques
découvrir le bien
Prix du bien 577 500 €
Pièce(s) 8
Chambre(s) 7

Caractéristiques du bien

Caractéristiques Valeurs
Code postal 22130
Surface habitable (m²) 146 m²
surface terrain 4,06 ha
Nombre de chambre(s) 7
Nombre de pièces 8
Nombre de niveaux 1
Nb de salle d'eau 5
Cuisine Américaine
Type de cuisine Equipée
Nombre de garage 1
Exposition Sud
Année de construction 1948

Infos financières

Caractéristiques Valeurs
Prix de vente honoraires TTC inclus 577 500 €
Prix de vente honoraires TTC exclus 550 000 €
Honoraires TTC à la charge acquéreur 5 %

Bilans énergétiques

DPE GES
Ce bien vous intéresse ?
Fieldset par défaut
Fieldset par défaut
Validation

* champs obligatoires

Contacter l'agence
Validation
Les informations recueillies sur ce formulaire sont enregistrées dans un fichier informatisé par La Boite Immo agissant comme Sous-traitant du traitement pour la gestion de la clientèle/prospects de l'Agence / du Réseau qui reste Responsable du Traitement de vos Données personnelles. La base légale du traitement repose sur l'intérêt légitime de l'Agence / du Réseau. Elles sont conservées jusqu'à demande de suppression et sont destinées à l'Agence / au Réseau. Conformément à la loi « informatique et libertés », vous disposez des droits d’accès, de rectification, d’effacement, d’opposition, de limitation et de portabilité de vos données. Vous pouvez retirer votre consentement à tout moment en contactant directement l’Agence / Le Réseau. Consultez le site https://cnil.fr/fr pour plus d’informations sur vos droits. Si vous estimez, après avoir contacté l'Agence / le Réseau, que vos droits « Informatique et Libertés » ne sont pas respectés, vous pouvez adresser une réclamation à la CNIL. Nous vous informons de l’existence de la liste d'opposition au démarchage téléphonique « Bloctel », sur laquelle vous pouvez vous inscrire ici : https://www.bloctel.gouv.fr Dans le cadre de la protection des Données personnelles, nous vous invitons à ne pas inscrire de Données sensibles dans le champ de saisie libre.
Ce site est protégé par reCAPTCHA, les Politiques de Confidentialité et les Conditions d'Utilisation de Google s'appliquent.

Localisationdu bien

  • Commerces et santé
  • Loisirs
  • Ecoles
  • Transports
  • Pratique